Baja Guesthouse

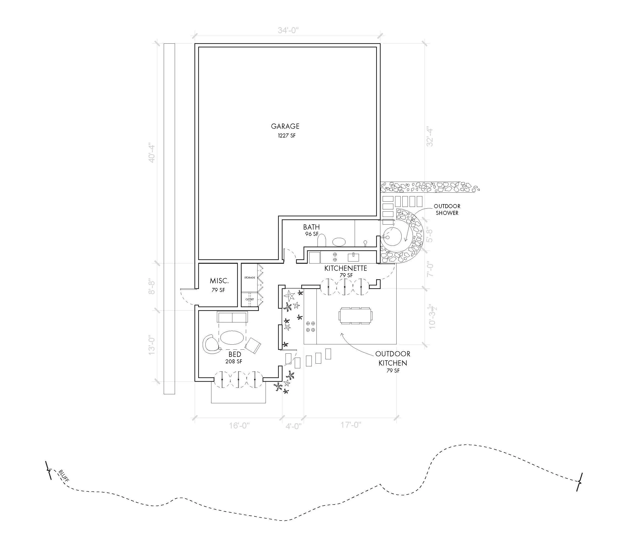
Guesthouse and garage for a house on the coast of Baja California.

Previous
Previous

Hollywood Dell House

Next
Next

Guesthouse Guesthouse